南宁医院PCR实验室净化工程
2020-07-25
南宁医院PCR实验室净化工程案例
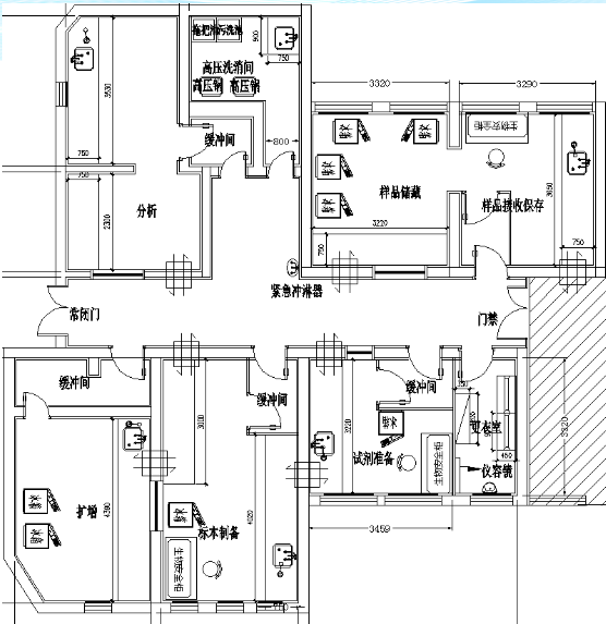
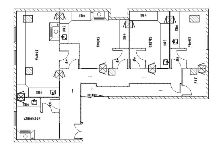
自肺炎蔓延至今,我国早已经得到有效的控制根据相关部门指示:有关单位需要进行相关的肺炎检测实验室建设,此类实验室属于安全等级较高的实验室,所以在建设时需要安装新风系统(净化空调),实验室内可调节正负压,实验室与实验室之间通过传递窗传递样品。

项目内容:该项目主要是为医院建设PCR实验室主要用于新冠肺炎的检测,包含实验室净化工程装修(隔断、吊顶、地面、水电、照明等)、实验家具仪器布局购置、实验室新风系统安装、实验室废气处理装置。
项目进度:现场沟通→场地测量→确认材料清单签订合同→整套设计图纸输出客户确认→材料清单准备(玻镁板5-8天、地板胶5-8天、净化铝材5-8天、实验台柜7-10天、材料准备速度以实际情况为准)→现场施工→设备调试→客户确认→验收完成。
南宁净化工程现场施工步骤
现场拆除5天→玻镁板隔断、吊顶安装13天→水电安装10天→地板胶安装4天→实验台安装6天→净化空调安装→10天→卫生清理2天(部分施工步骤可同时进行具体以实际情况为准,详情可咨询客服)整体工期预计45天内可完成交付验收。


上一篇:实验室工程与实验室净化工程...
下一篇:怎样做好实验台的定制